编辑推荐
本书选题明确,目标读者清楚,针对性很强,具有很强的代表性和借鉴意义,能为国内室内设计师和相关师生提供具体、详实的参考资料。
图书简介
当设计商店空间的时候,不仅仅要考虑到商店空间的类型,还要考虑到设计对地点、功能以及周边环境的要求。但是,所有的商店空间都需要一个可以创造良好的购物环境以及能够提供优质服务的基础结构。
近几年,在美国模式的影响下,随着购物中心的大量涌现,商店空间设计有了很大的发展。购物中心的大量涌现引发了人们对商店空间进行全新诠释。其中包括商店空间内部分割方式的变化(在过去,仅仅是笼统而传统的),灯光设计和色彩搭配的系统运用,预制构件材料的使用,透明空间的普遍使用,可见式隔断的减少。
为了向读者提供最新的且最具代表性和创新性的设计案例,我们尽可能地展示不同风格、不同类型的商店空间,以
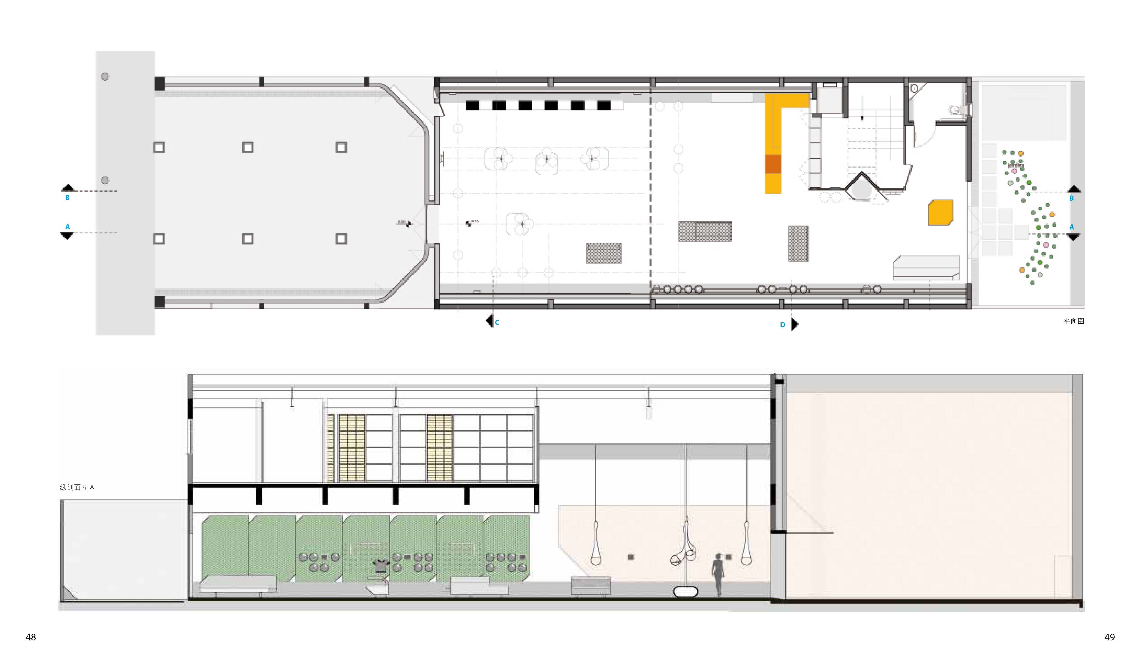
及无限的装饰可能性。本书也可作为反映室内设计当下和未来发展趋势的指导手册。我们不仅展示了每个项目的总体设计,细部结构也做了详细的展示,并且配有大量照片、平面图、立面图、轴测图和草图,以及设计师对项目的描述。
本书呈现了商店设计中一系列多样化的精美服饰、配件和其他物品,体现了当今世界“消费主义”的新潮流。本书堪称一本内容丰富、色彩缤纷的商店设计合辑,其中许多案例均由当代著名室内设计工作室完成。每个案例均配有详细的文字说明和设计师的心得体会,以及大量的草图、平面图和全彩照片。
近几年,在美国模式的影响下,随着购物中心的大量涌现,商店空间设计有了很大的发展。购物中心的大量涌现引发了人们对商店空间进行全新诠释。其中包括商店空间内部分割方式的变化(在过去,仅仅是笼统而传统的),灯光设计和色彩搭配的系统运用,预制构件材料的使用,透明空间的普遍使用,可见式隔断的减少。
为了向读者提供最新的且最具代表性和创新性的设计案例,我们尽可能地展示不同风格、不同类型的商店空间,以
及无限的装饰可能性。本书也可作为反映室内设计当下和未来发展趋势的指导手册。我们不仅展示了每个项目的总体设计,细部结构也做了详细的展示,并且配有大量照片、平面图、立面图、轴测图和草图,以及设计师对项目的描述。
本书呈现了商店设计中一系列多样化的精美服饰、配件和其他物品,体现了当今世界“消费主义”的新潮流。本书堪称一本内容丰富、色彩缤纷的商店设计合辑,其中许多案例均由当代著名室内设计工作室完成。每个案例均配有详细的文字说明和设计师的心得体会,以及大量的草图、平面图和全彩照片。
图书目录
Muti Randolph Peter Marino, FAIA Asymptote Architecture Corneille Uedingslohmann
Office for Metropolitan Architecture (oma) Giorgio Borruso Design
Mass Studies - Minsuk Cho + Kisu Park Carbondale, Eric Carlson + Nagaishi Architects
LEONG LEONG propeller z
Raiser Lopes Designers Randy Brown Architects
Sybarite Sean Dix
Matteo Thun Asymptote: Hani Rashid, Lise Anne Couture
ArchLAB Dear Design Heatherwick Studio Ron Arad Associates
Hiroshi Nakamura & NAP Associates Sinato Patrick Jouin Massimiliano & Doriana Fuksas
Universal Design Studio AB Rogers Design ADD+ (Manuel Bailo, Rosa Rull) Gordon Kipping & Frank O. Gehry
Galeria Melissa Carlos Miele Flagship Store
Prada New York Epicenter Fornarina / Roma
Ann Demeulemeester Shop Louis Vuitton
3.1 Phillip Lim GIL fashion area 1
Tibi La Maison Unique
Lanvin Boutique Ginza Patrick Cox Boutique Van Cleef & Arpels Emporio Armani Chater Road
Fendi Roma Little Red Riding Hood GmbH
Boss Orange Bizarre
Stefanel New Concept Byblos Boutique
Hugo Boss Alessi Flagship Store
Lurdes Bergada, Syngman Cucala Y’s Store
Franqueensense Emperor Moth Sita Murt Boutique (Avinyó Street) Issey Miyake Tribeca
Office for Metropolitan Architecture (oma) Giorgio Borruso Design
Mass Studies - Minsuk Cho + Kisu Park Carbondale, Eric Carlson + Nagaishi Architects
LEONG LEONG propeller z
Raiser Lopes Designers Randy Brown Architects
Sybarite Sean Dix
Matteo Thun Asymptote: Hani Rashid, Lise Anne Couture
ArchLAB Dear Design Heatherwick Studio Ron Arad Associates
Hiroshi Nakamura & NAP Associates Sinato Patrick Jouin Massimiliano & Doriana Fuksas
Universal Design Studio AB Rogers Design ADD+ (Manuel Bailo, Rosa Rull) Gordon Kipping & Frank O. Gehry
Galeria Melissa Carlos Miele Flagship Store
Prada New York Epicenter Fornarina / Roma
Ann Demeulemeester Shop Louis Vuitton
3.1 Phillip Lim GIL fashion area 1
Tibi La Maison Unique
Lanvin Boutique Ginza Patrick Cox Boutique Van Cleef & Arpels Emporio Armani Chater Road
Fendi Roma Little Red Riding Hood GmbH
Boss Orange Bizarre
Stefanel New Concept Byblos Boutique
Hugo Boss Alessi Flagship Store
Lurdes Bergada, Syngman Cucala Y’s Store
Franqueensense Emperor Moth Sita Murt Boutique (Avinyó Street) Issey Miyake Tribeca










