1.全套图纸呈现,资料性、参考价值均高出同类图书。
2.集结国内顶尖景观设计事务所——泛亚国际真实案例。
编辑推荐
图书简介
全书分为上下两册,上册包括水景、铁艺大门、灯柱、门卫、景亭、观景平台、景观长凳、景观桥、标志牌9类景观元素的设计图示;下册包括围墙、景墙、廊架、车库入口、铺地结构、道牙、驳岸、栏杆、花钵、排水、台阶、泳池、隐形消防车道等14类景观细部的原版图纸。
图书目录
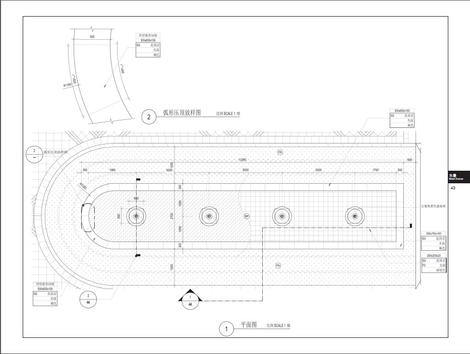
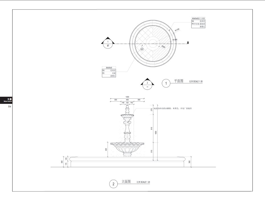
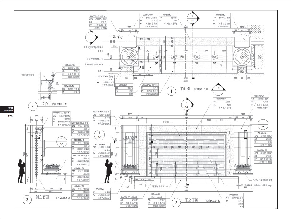
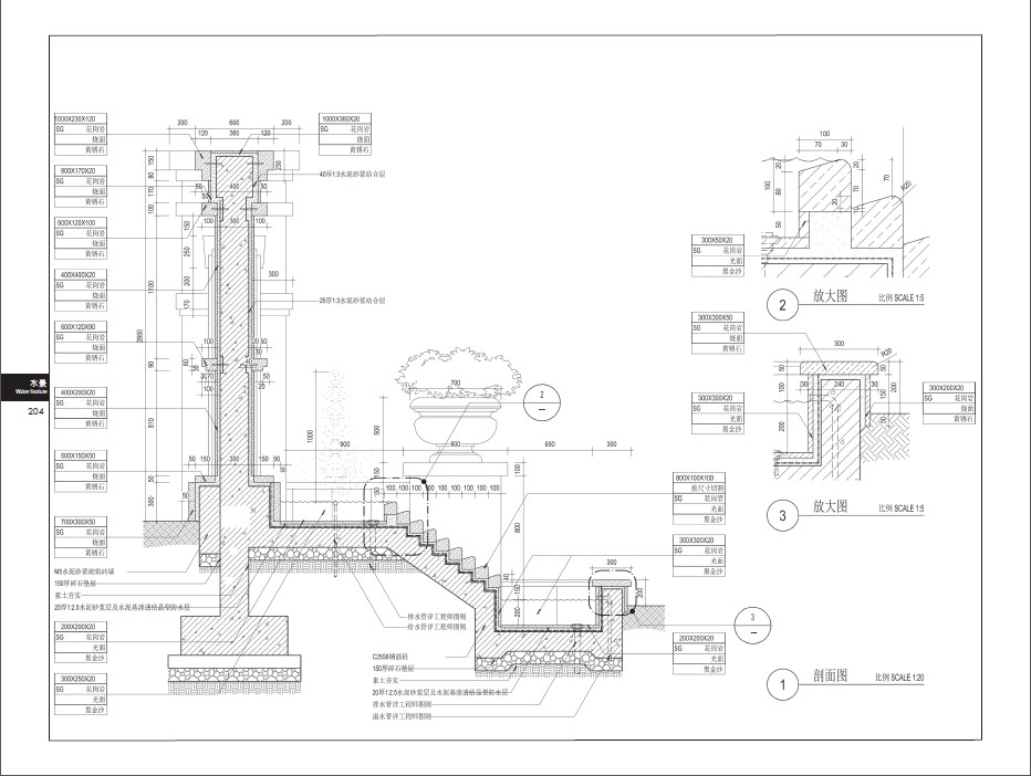
1水景Water Feature
2 铁艺大门Iron Gates
3 灯柱Light Column
4 门卫Guardhouse
5 景亭Pavilion
6 观景平台Viewing Platform
7 景观长凳Bench
8 景观桥Feature Bridge
9 标志牌Logo
10 围墙Fence
11 景墙Feature Wall
12 廊架Pergola
13 车库入口廊架Basement Entrance Pergola
14 铺地结构Feature Paving
15 驳岸Pond-edge
16 道牙Kerb
17 栏杆Railing
18 花钵Feature Pot
19 排水Drainage
20 台阶Steps
21 隐形消防车道Contact Fire Lane
22 泳池Swimming Pool
2 铁艺大门Iron Gates
3 灯柱Light Column
4 门卫Guardhouse
5 景亭Pavilion
6 观景平台Viewing Platform
7 景观长凳Bench
8 景观桥Feature Bridge
9 标志牌Logo
10 围墙Fence
11 景墙Feature Wall
12 廊架Pergola
13 车库入口廊架Basement Entrance Pergola
14 铺地结构Feature Paving
15 驳岸Pond-edge
16 道牙Kerb
17 栏杆Railing
18 花钵Feature Pot
19 排水Drainage
20 台阶Steps
21 隐形消防车道Contact Fire Lane
22 泳池Swimming Pool








