“把农村建设得更像农村”系列丛书,分为理论篇与实践篇,共10册。将理论运用于实践,从实践完善理论,您对乡村建设的一切疑问,都可以在本丛书中找到答案。
汇总乡建领军人物孙君及绿十字近20年的乡村实战经验
站在“巨人”的肩头,让读者轻松了解乡村建设的最新理念和未来动向。
深度发掘乡建关键点,跟随驻场设计师深入了解乡建
从选取乡村建设切入点、如何和政府及村民沟通交流、建设中的时间安排及资金筹备,顺利解决各种现场突发问题……设计师将乡村建设的方方面面倾囊相授。
与孙君及主创设计师面对面,探索疑难问题的解决之道
通过访谈形式,与专业人士探讨乡建的难点和重点,迅速成长与完善。
第一手设计资料及海量图纸,直观看到设计师的设计成果
用具体的模型与CAD图,展示设计师的设计与构思,轻松把握乡建设计的精髓。
近百张实景照片,足不出户,也可看到乡村建设后的震撼改变
将设计师精心构思的每一处灵感创意用实景图360°展示,赏心悦目。
精选进口纯质纸,全彩印刷,满足阅读心享受
相信不论是设计师、乡建爱好者还是政府人员,都会从此套兼备理论性与实用性的乡建丛书中获益良多。
编辑推荐
图书简介
乡村振兴战略是国家的大政方针,如何振兴和进行建设乡村是现今社会亟需解决的问题。“中国乡村建设系列丛书”共十册,分为理论篇和实践篇两部分,《把农村建设得更像农村 洞庭渔村》正是实践篇之一。
洞庭渔村原是国有西湖农场的渔场,随着农场体制改革的深化,渔场原先的职能逐渐弱化,成为一个普通的村落。洞庭渔村项目的规划设计基于日照、采光、年降水量、温度、生活方式、生产方式和地域材料等因素。此外,因建筑毗邻洞庭湖,整体建筑营造出临水的空间感。设计师在项目初期考虑了诸多因素,如村民的生活方式、生产方式、规划设计的便捷程度,以及未来开发旅游业的可能性来建设洞庭渔村。实现了以常德西湖为基地,渔村建设新模式。让现代与民俗同在,让渔村与城镇一体,让文化与产业结合,让人与自然和谐共生。
书中呈现了大量的设计图纸、实景照片、模型方案,便于读者足不出户即能看到洞庭渔村改变的方方面面。
洞庭渔村原是国有西湖农场的渔场,随着农场体制改革的深化,渔场原先的职能逐渐弱化,成为一个普通的村落。洞庭渔村项目的规划设计基于日照、采光、年降水量、温度、生活方式、生产方式和地域材料等因素。此外,因建筑毗邻洞庭湖,整体建筑营造出临水的空间感。设计师在项目初期考虑了诸多因素,如村民的生活方式、生产方式、规划设计的便捷程度,以及未来开发旅游业的可能性来建设洞庭渔村。实现了以常德西湖为基地,渔村建设新模式。让现代与民俗同在,让渔村与城镇一体,让文化与产业结合,让人与自然和谐共生。
书中呈现了大量的设计图纸、实景照片、模型方案,便于读者足不出户即能看到洞庭渔村改变的方方面面。
图书目录
1 洞庭渔村今与昔 14
1.1 初识乡村 15
1.2 梅山文化 18
2 乡村营造 22
2.1 总体定位 23
2.2 设计思路 26
2.3 建筑意向 50
2.4 乡村景观 64
2.5 模型研究与推敲 72
2.6 漫长沟通与观念改变 74
2.7 施工过程记录 76
3 设计手记 94
3.1 来自乡村的设计 95
3.2 洞庭渔村施工感悟与记录 104
3.3 洞庭渔村驻场设计感悟 106
3.4 洞庭渔村建设前期驻场感悟 107
3.5 洞庭渔村景观施工负责人设计感悟 108
4 大事记及施工指导 110
4.1 大事记 111
4.2 造价表 114
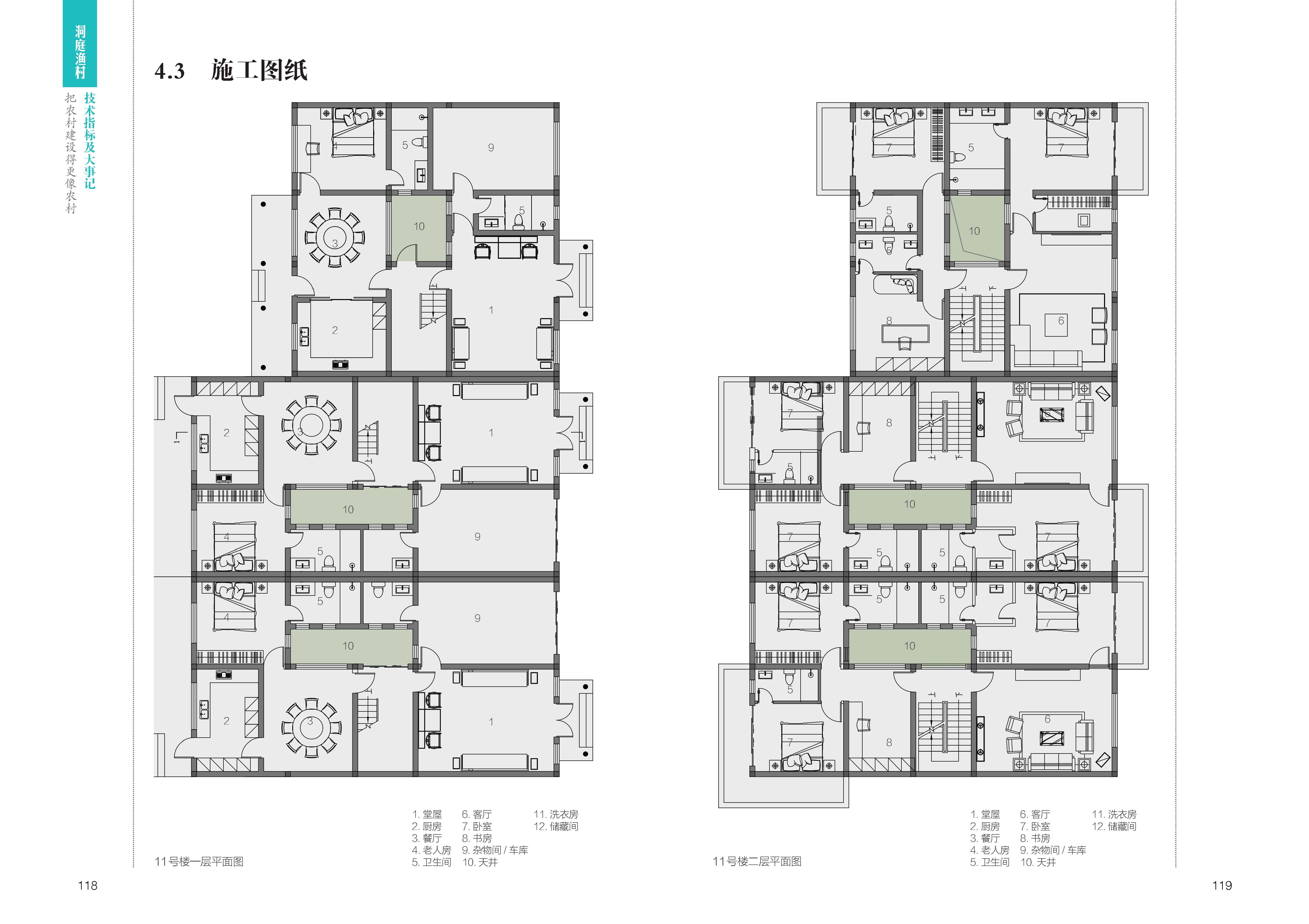
4.3 施工图纸 118
后 记 148
把农村建设得更像农村 149
国有农场乡村建设的一次艰难尝试 150
附 录 154
团队简介 155
作者简介 157
“绿十字”简介 158
致 谢 159
1.1 初识乡村 15
1.2 梅山文化 18
2 乡村营造 22
2.1 总体定位 23
2.2 设计思路 26
2.3 建筑意向 50
2.4 乡村景观 64
2.5 模型研究与推敲 72
2.6 漫长沟通与观念改变 74
2.7 施工过程记录 76
3 设计手记 94
3.1 来自乡村的设计 95
3.2 洞庭渔村施工感悟与记录 104
3.3 洞庭渔村驻场设计感悟 106
3.4 洞庭渔村建设前期驻场感悟 107
3.5 洞庭渔村景观施工负责人设计感悟 108
4 大事记及施工指导 110
4.1 大事记 111
4.2 造价表 114
4.3 施工图纸 118
后 记 148
把农村建设得更像农村 149
国有农场乡村建设的一次艰难尝试 150
附 录 154
团队简介 155
作者简介 157
“绿十字”简介 158
致 谢 159









