面积小、空间难以利用? 看《3D住宅格局教科书》教你如何把空间变大。利用隔断、改变动线、增加采光、合理收纳……通过这些手法,施展空间魔法,保证你的小家越住越大。 
目前市场上关于户型规划、户型改造的书很多, 而《3D住宅格局教科书》不单单解析户型规划的技巧,更通过3D户型图鉴真实、立体得展示户型规划,便于读者理解,给予读者更直观的感受。而且每个章节前通过生动的手绘来描述户型规划中的基本要素。
日本建筑家协会的17位知名建筑师,如有50年从业经验的建筑师黑木实,擅长解决小户型的空间问题的高野保光等,针对各种屋型分析经常会面临的格局疑难杂症,分享多年住宅设计和户型规划的经验和巧思,为读者提供各种屋型、格局通用的解决技巧。
				
			编辑推荐
图书简介
					《3D住宅格局教科书》精选日本建筑家协会17位知名建筑师的住宅户型规划案例,并分享多年住宅设计和户型规划的经验和巧思。从边界布局、动线布局、色彩布局三大方面全面剖析户型规划的设计准则。分享了如何通过布局与收纳,改善空间以及如何让生活更便捷的提升方法。
				
			图书目录
						第1 章 边界布局
开阔感 008
1 通过挑空在狭小空间中营造开阔感 010
2 调整空间高度营造开阔感 012
3 通过矮墙隔断空间 014
4 设置中庭将视线引向外部 016
5 挑空要讲究纵横均衡 018
6 创造向多方位拓展的螺旋楼梯 020
7 表皮包围的一体化空间 022
通透感 024
1 通过阳台的护栏将视线引向空中 026
2 创造纵、横、斜三个方向的通透感 028
3 遮住邻近的建筑将视线引向小巷深处 030
4 朝向借景方向将整面墙做成大开口 032
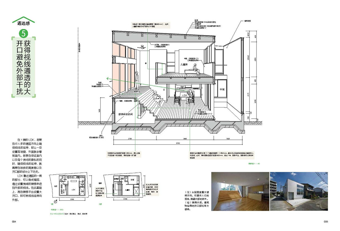
5 获得视线通透的大开口避免外部干扰 034
6 让开口部近在眼前的布局 036
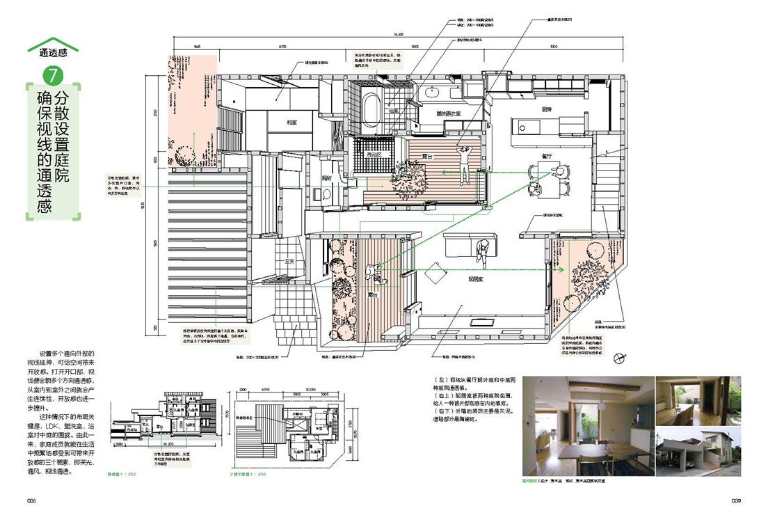
7 分散设置庭院确保视线的通透感 038
8 打造将外部空间引入内部的过渡空间 040
9 在玄关门两侧创造通透感 042
纵深感 044
1 延长视线穿过的距离 046
2 在平面上设计转角营造纵深感 048
3 将明暗空间相互重叠 050
4 细长建筑物不设走廊 052
5 突出门前长过道强调纵深感 054
叠加 056
1 中庭的叠加营造多样的纵深感 058
2 通过半透明的隔墙传递信息和光线 060
3 上下叠加打造居身之所 062
4 通过格栅使外部和中庭适度相连 064
5 通过中庭在多层空间中打造整体感 066
间 068
1 连接空间与空间的公共区域 070
2 中庭为“间”,连接起居室、餐厅、厨房 072
3 设置将空间柔和分割的箱形空间 074
4 通过设置高差创造引发多种行为的空间 076
5 通过在中庭设置外部楼梯连接居室 078
6 引入通道使居住空间更加丰富多彩 080
7 通过高低差与屋外空间隔断 082
8 在室内设置挑台空间 084
9 通过格栅遮挡使阳台内部化 086
第2 章 动线布局
动线 090
1 以中庭为中心的回游动线 092
2 合理布置玄关和楼梯使起居室更加宽敞 094
3 兼顾生活的便利性和收纳功能 096
4 使移动更具趣味性的楼梯布置 098
5 利用高差隔断空间思考动线的配置 100
6 通过旋转楼梯打造视线多方向推移的空间 102
驻留 104
1 给楼梯增加新功能 106
2 在外部空间打造舒适的停留场所 108
3 沿着用地的高低差分散布局驻留 110
4 使视线持平让用餐空间更具魅力 112
5 以挑空为中心使上下的驻留空间相连 114
6 通过公共空间将卧室围拢 116
7 忽隐忽现,营造沉静感 118
第3 章 色彩布局
光、影 122
1 使建筑物集中向南侧确保采光 124
2 楼梯间兼具采光井的功能 126
3 通过中央的挑空使北侧一楼亦能采光 128
4 结合时间、季节进行采光 130
5 通过全方位高侧窗采光将光线引入家中 132
6 透过天窗的光在室内投下光影 134
7 起居室与和室明暗分明 136
8 调整各个房间的明亮度 138
9 通过来自空隙的采光打造阴影 140
暖、凉 142
1 通过错层实现空气循环 144
2 挑空空间的舒适度由保温性能决定 146
3 不依赖设备实现空气循环的方法 148
4 通过中央空调创造恒温环境 150
5 通过屋顶绿化提高保温性能 152
6 通过屋顶形状控制风的进入方式 154
7 引导风的流向使地下空间更加舒适 156
8 利用烟囱效应促进通风散热 158
9 加强屋顶通风降低室内温度 160
执笔者简介 162
				开阔感 008
1 通过挑空在狭小空间中营造开阔感 010
2 调整空间高度营造开阔感 012
3 通过矮墙隔断空间 014
4 设置中庭将视线引向外部 016
5 挑空要讲究纵横均衡 018
6 创造向多方位拓展的螺旋楼梯 020
7 表皮包围的一体化空间 022
通透感 024
1 通过阳台的护栏将视线引向空中 026
2 创造纵、横、斜三个方向的通透感 028
3 遮住邻近的建筑将视线引向小巷深处 030
4 朝向借景方向将整面墙做成大开口 032
5 获得视线通透的大开口避免外部干扰 034
6 让开口部近在眼前的布局 036
7 分散设置庭院确保视线的通透感 038
8 打造将外部空间引入内部的过渡空间 040
9 在玄关门两侧创造通透感 042
纵深感 044
1 延长视线穿过的距离 046
2 在平面上设计转角营造纵深感 048
3 将明暗空间相互重叠 050
4 细长建筑物不设走廊 052
5 突出门前长过道强调纵深感 054
叠加 056
1 中庭的叠加营造多样的纵深感 058
2 通过半透明的隔墙传递信息和光线 060
3 上下叠加打造居身之所 062
4 通过格栅使外部和中庭适度相连 064
5 通过中庭在多层空间中打造整体感 066
间 068
1 连接空间与空间的公共区域 070
2 中庭为“间”,连接起居室、餐厅、厨房 072
3 设置将空间柔和分割的箱形空间 074
4 通过设置高差创造引发多种行为的空间 076
5 通过在中庭设置外部楼梯连接居室 078
6 引入通道使居住空间更加丰富多彩 080
7 通过高低差与屋外空间隔断 082
8 在室内设置挑台空间 084
9 通过格栅遮挡使阳台内部化 086
第2 章 动线布局
动线 090
1 以中庭为中心的回游动线 092
2 合理布置玄关和楼梯使起居室更加宽敞 094
3 兼顾生活的便利性和收纳功能 096
4 使移动更具趣味性的楼梯布置 098
5 利用高差隔断空间思考动线的配置 100
6 通过旋转楼梯打造视线多方向推移的空间 102
驻留 104
1 给楼梯增加新功能 106
2 在外部空间打造舒适的停留场所 108
3 沿着用地的高低差分散布局驻留 110
4 使视线持平让用餐空间更具魅力 112
5 以挑空为中心使上下的驻留空间相连 114
6 通过公共空间将卧室围拢 116
7 忽隐忽现,营造沉静感 118
第3 章 色彩布局
光、影 122
1 使建筑物集中向南侧确保采光 124
2 楼梯间兼具采光井的功能 126
3 通过中央的挑空使北侧一楼亦能采光 128
4 结合时间、季节进行采光 130
5 通过全方位高侧窗采光将光线引入家中 132
6 透过天窗的光在室内投下光影 134
7 起居室与和室明暗分明 136
8 调整各个房间的明亮度 138
9 通过来自空隙的采光打造阴影 140
暖、凉 142
1 通过错层实现空气循环 144
2 挑空空间的舒适度由保温性能决定 146
3 不依赖设备实现空气循环的方法 148
4 通过中央空调创造恒温环境 150
5 通过屋顶绿化提高保温性能 152
6 通过屋顶形状控制风的进入方式 154
7 引导风的流向使地下空间更加舒适 156
8 利用烟囱效应促进通风散热 158
9 加强屋顶通风降低室内温度 160
执笔者简介 162
				
								
								
								
								
								
								
								
								
								
								
								
								