树屋在国外是很多父母为自己的孩子建造的一个童年时期可以住和玩的屋子,但是在国内,很少有家庭有这个条件和想法,而本书就为读者提供了一个个独具创意的树屋设计;从商业应用、居住设计、游乐观光和未来设计,按照不同的功能划分,全面的介绍了树屋的整个设计工程和创意思维。希望其中必有你喜欢和需要的,或者从中可以带来更多的设计灵感。而本书的亮点在于:
1. 本书深度剖析国外最具创意的树屋设计,从概念、构思、施工过程到完工效果,为您展现国际最具特色的树屋设计。
2. 多方位全面的实景图展示,配合详细精准的图纸分析和设计施工说明,为读者提供最全面的学习借鉴资料。
				
			编辑推荐
图书简介
					本书通过对国外优秀案例和项目的展示,为国内的设计师和读者们带来崭新的创作思路和广阔的设计灵感。本书按照树屋的功能性分为四大章节:商业应用、居住设计、游乐观光和未来设计。整书以精美图片为主,配以内容充实而精炼的文字叙述,为读者提供参考。
				
			图书目录
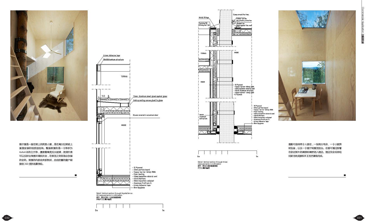
						Commercial Application 商业应用
Yellow Tree House Restaurant
黄树屋餐厅
Bangkok Tree House
泰国曼谷树屋
Dom’Up Tree House
Dom’Up 树屋
Tree Top Studio
树顶工作室
Tree Hotels in Harads
哈拉斯树屋酒店
Khun Benz Restaurant
鸟巢餐厅
Bensfield Tree House
本菲尔德树屋
Center Parcs Tree Houses
中央公园树屋
Fibonacci Tree House
斐波那契树屋
Hazelwood School
黑泽尔伍德学校
Tree House Kitchen
树屋厨房
Treetop Dining Tree House
树梢进餐树屋
Tree House Lodge
树屋旅馆
Residential Design 居住设计
4 Tree House
四树之屋
25 Green
25 绿超级树屋
Tree House Solling
梯台树屋
Pear Tree House
梨树屋
Tree House Plendelhof
Plendelhof 树屋
Tree House Djuren
动物树屋
Hem Loft
褶边阁楼
Quebrada House
山涧住宅
Rooted Tree House
有根树屋
Wilkinson Residence
威尔金森住宅
Adventure Clubhouse
冒险俱乐部
Willow Nook Tree House
柳木角落树屋
Cleveley Mere Tree House
克莱维利湖畔树屋
High-Tech Hideaway Tree House
高科技隐匿树屋
Little Acorn Tree House
小橡子树屋
Living the Highlife Tree House
高级生活树屋
Room with a View Tree House
美景房树屋
Tarifa Ecolodge
塔里法生态旅馆
Treetop Tower
树顶之塔
Sleepy Hollow Tree House
断头谷树屋
The Lookout Tree House
瞭望树屋
Pleasure Sightseeing 游乐观光
Bamboo Tripod
竹子三脚架
Bird Apartment
鸟巢
Children’s Activity and Learning Centre
儿童活动及学习中心
Copper Nest
铜巢
Geo Donar
多纳尔地球
Healdsburg
希尔兹堡
Leaf House
叶形屋
Lotus
莲花
Mulholland
马尔霍兰
Alice in Wonderland Tree House
爱丽丝梦游仙境树屋
Belton House Playground
贝尔顿大宅游乐场
Birr Castle Tree House
比尔城堡树屋
Pensthorpe WildRootz
普索原始屋顶
Sir Harold Hillier Gardens Tree House
哈罗德希利尔爵士花园树屋
The Enchanted Hideouts
魔法小屋
Future Design 未来设计
Palm Fiction
棕榈虚幻
One with the Birds
与鸟为伴
Primeval Symbiosis
原始共生
Deer Park Tree House
鹿园树屋
Lake Como Tree House
科莫湖树屋
Quiet Tree House
宁静树屋
The Biodiversity Nest
生物多样巢
					
				Yellow Tree House Restaurant
黄树屋餐厅
Bangkok Tree House
泰国曼谷树屋
Dom’Up Tree House
Dom’Up 树屋
Tree Top Studio
树顶工作室
Tree Hotels in Harads
哈拉斯树屋酒店
Khun Benz Restaurant
鸟巢餐厅
Bensfield Tree House
本菲尔德树屋
Center Parcs Tree Houses
中央公园树屋
Fibonacci Tree House
斐波那契树屋
Hazelwood School
黑泽尔伍德学校
Tree House Kitchen
树屋厨房
Treetop Dining Tree House
树梢进餐树屋
Tree House Lodge
树屋旅馆
Residential Design 居住设计
4 Tree House
四树之屋
25 Green
25 绿超级树屋
Tree House Solling
梯台树屋
Pear Tree House
梨树屋
Tree House Plendelhof
Plendelhof 树屋
Tree House Djuren
动物树屋
Hem Loft
褶边阁楼
Quebrada House
山涧住宅
Rooted Tree House
有根树屋
Wilkinson Residence
威尔金森住宅
Adventure Clubhouse
冒险俱乐部
Willow Nook Tree House
柳木角落树屋
Cleveley Mere Tree House
克莱维利湖畔树屋
High-Tech Hideaway Tree House
高科技隐匿树屋
Little Acorn Tree House
小橡子树屋
Living the Highlife Tree House
高级生活树屋
Room with a View Tree House
美景房树屋
Tarifa Ecolodge
塔里法生态旅馆
Treetop Tower
树顶之塔
Sleepy Hollow Tree House
断头谷树屋
The Lookout Tree House
瞭望树屋
Pleasure Sightseeing 游乐观光
Bamboo Tripod
竹子三脚架
Bird Apartment
鸟巢
Children’s Activity and Learning Centre
儿童活动及学习中心
Copper Nest
铜巢
Geo Donar
多纳尔地球
Healdsburg
希尔兹堡
Leaf House
叶形屋
Lotus
莲花
Mulholland
马尔霍兰
Alice in Wonderland Tree House
爱丽丝梦游仙境树屋
Belton House Playground
贝尔顿大宅游乐场
Birr Castle Tree House
比尔城堡树屋
Pensthorpe WildRootz
普索原始屋顶
Sir Harold Hillier Gardens Tree House
哈罗德希利尔爵士花园树屋
The Enchanted Hideouts
魔法小屋
Future Design 未来设计
Palm Fiction
棕榈虚幻
One with the Birds
与鸟为伴
Primeval Symbiosis
原始共生
Deer Park Tree House
鹿园树屋
Lake Como Tree House
科莫湖树屋
Quiet Tree House
宁静树屋
The Biodiversity Nest
生物多样巢

								
								
								
								
								
								
								
								
								
								
								
								
								
								