这是一个设计不拘泥于传统的美学,又历史责任,跑在现代社会前沿的快车型事务所。他抵制建筑的现代主义中用一种固定的设计样式,来套各种不同的场所和地域的设计的通病,采取一对一的方式来设计,不重复别人,更不重复自己。
此书将阿克雅25年的工作都汇集起来,展开了一系列精彩的建筑画卷。那些绝对原创的曼妙建筑外观,那种割舍不断的与当地历史衔接的建筑形式,无一不吸引着读者。配上事务所创始人兼接触建筑学者马可•卡萨蒙蒂(Marco Casamonti)教授的深度诠释,更增加了此书的可读性。
阿克雅自2006年进驻中国以来,在中国已经实现了很多让人过目不忘的建筑项目。这些建筑是如何完成的?阿克雅为何来中国?在中国发展的如此良好,那些富有魅力的建筑是如何建造出来的?阿克雅设计理论原则是什么……答案都在此书中。
编辑推荐
图书简介
经过多年的实践和研究,我们在这不平凡的亚洲国家完成了那些塑造我们研究和创新路径的项目,现在我们有这个机会将前25年的工作都汇集在这本出版物中。这份邀请(此书的出版)是对我们实践工作背后思想的逐渐自我完善的认可。我们所有的项目都是我们设计意图的完全体现,并以每个项目为契机,把我们自己的信念带入到不同“语境”的对话中 。
毫无疑问,建筑是一种艺术的诠释,需要技术,让故事更有说服力。这也是为什么每一个项目都是“新”的:我们的信念,每一座建筑都如同是一个新的故事,通过材料、空间概念、布局和装饰来阐述,总是随着预先存在的环境的多样性而改变,即文化的背景总是被认为比地理上的背景更多变。
当我们回顾自己的作品,可以找出某几个概念:知识、解释、叙述、身份和归属感,它们依次从原本的背景开始,在建筑形成时结束。
正如一件艺术作品——在确保提供居住服务的同时,利用一切方法来彰显其个性,记忆和创新之间寻找平衡。这表明我们事务所的起源和发展与佛罗伦萨息息相关,我们的潜意识不自觉地偏向了典型的文艺复兴时期的体验,融合了传统与创新,并将其带到当下。
我们试图了解当今时代,并在过去和未来间激荡。我们相信,当下,只能被理解为在运动中设置的时间,捕获并通过连续视觉工作的设计师们,总是在已知的过去和想象的未来间徘徊。建筑师——也可以指理想中的每一个人—— 是时刻将知识和创造力融合到设计中, 学习过去,并根据未来远景而改变。
——马可•卡萨蒙蒂(Marco Casamonti)
毫无疑问,建筑是一种艺术的诠释,需要技术,让故事更有说服力。这也是为什么每一个项目都是“新”的:我们的信念,每一座建筑都如同是一个新的故事,通过材料、空间概念、布局和装饰来阐述,总是随着预先存在的环境的多样性而改变,即文化的背景总是被认为比地理上的背景更多变。
当我们回顾自己的作品,可以找出某几个概念:知识、解释、叙述、身份和归属感,它们依次从原本的背景开始,在建筑形成时结束。
正如一件艺术作品——在确保提供居住服务的同时,利用一切方法来彰显其个性,记忆和创新之间寻找平衡。这表明我们事务所的起源和发展与佛罗伦萨息息相关,我们的潜意识不自觉地偏向了典型的文艺复兴时期的体验,融合了传统与创新,并将其带到当下。
我们试图了解当今时代,并在过去和未来间激荡。我们相信,当下,只能被理解为在运动中设置的时间,捕获并通过连续视觉工作的设计师们,总是在已知的过去和想象的未来间徘徊。建筑师——也可以指理想中的每一个人—— 是时刻将知识和创造力融合到设计中, 学习过去,并根据未来远景而改变。
——马可•卡萨蒙蒂(Marco Casamonti)
图书目录
深度访谈 INTERVIEW
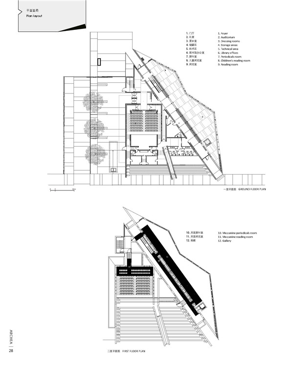
科诺公共图书馆及礼堂,意大利,贝加莫,科诺,1997—2009年
CURNO PUBLIC LIBRARY AND AUDITORIUM, Curno, Bergamo, Italy, 1997–2009
第勒诺大街重建,意大利,波坦察,2000年至今
VIA TIRRENO REDEVELOPMENT, Potenza, Italy, 2000–now
广场及公共设施,意大利,莱科,梅拉泰,1996—2010年
SQUARE AND PUBLIC FACILITIES, Merate, Lecco, Italy, 1996–2010
内姆布拉图书馆,意大利,贝加莫,内姆布拉,2002—2007年
NEW LIBRARY IN NEMBRO, Nembro, Bergamo, Italy, 2002–2007
"THE CORD" 艺术装置/威尼斯视觉艺术双年展入口,意大利,威尼斯,城堡花园,2003年
THE CORD Giardini Di Castello, Venezia, Italy, 2003
塞雷尼奥残疾人中心,意大利,米兰,塞雷尼奥,2003—2012年
CDD – CENTER FOR DISABILITY, Seregno, Milan, Italy, 2003–2012
安蒂诺里酒庄,意大利,佛罗伦萨,佩萨河谷圣卡夏诺,2004—2012年
ANTINORI WINERY, San Casciano Val di Pesa, Florence, Italy, 2004–2012
常青藤塔,阿尔巴尼亚,地拉那,2005年至今
4 EVERGREEN, Tirana, Albania, 2005 – Now 112
不凡帝范梅勒工厂翻新扩建,意大利,米兰,莱纳特,2005—2011年
PERFETTI VAN MELLE FACTORY, Lainate, Milan, Italy, 2005 – 2011
糖果迪斯科舞厅,中国,北京,2006年
TANGO DISCO, Beijing, China, 2006 132
阿巴图斯公园宿营地,意大利,利佛诺,圣温琴佐,2005—2007年
PARK ALBATROS CAMPING, San Vincenzo, Livorno, Italy, 2005–2007
香格里拉酒庄,中国,山东,蓬莱,2007年至今
SHANGRI-LA WINERY, Penglai, Shangdong, China, 2007–Now
音乐与文化公园,意大利,佛罗伦萨,2007年
PARK OF MUSIC AND CULTURE, Florence, Italy, 2007
2010年中国上海世界博览会城市最佳实践区B3-2展馆,中国,上海,2007年
UBPA B3-2 PAVILION WORLD EXPO 2010, Shanghai, China, 2007
卡罗费利切酒店,意大利,萨萨里,拉马达莱那,2008—2009年
RESIDENZA DEL FORTE CARLO FELICE, La Maddalena, Sassari, Italy, 2008–2009
GEL-绿色能源实验室,中国,上海,2008—2012年
GEL – GREEN ENERGY, Shanghai, China, 2008–2012
VIA MAESTRI CAMPIONESI大街住宅,意大利,米兰,2009-—2012年
DWELLINGS IN VIA MAESTRI CAMPIONES, Milan, Italy, 2009–2012
勒特拉兹疗养院扩建项目,意大利,瓦雷泽,库纳尔多,2010年
EXPANSION OF “LE TERRAZZE” NURSING HOME, Cunardo, Varese, Italy, 2010
醴陵世界陶瓷艺术城,中国,湖南,醴陵,2010—2012年
LILING WORLD CERAMIC ART CITY, Liling, Hunan, China, 2010–2012
昌黎金士酒庄,中国,昌黎,2010—2012年
CHANG LI WINERY, Changli, China, 2010–2012
COLLE LORETO住宅楼,瑞士,卢加诺,2010年至今
COLLE LORETO RESIDENCE, Lugano, Switzerland, 2010–Now
绿博核心区,中国,郑州,2011年
LVBO CORE, Zhengzhou, China, 2011
国际葡萄酒博览园,中国,北京,延庆,2014年
INTERNATIONAL GRAPE EXHIBITION GARDEN , Yanqing , Beijing , China, 2014
襄阳机场竞赛项目,中国,湖北,襄阳,2013年
XIANGYANG AIRPORT COMPETITION, Xiangyang, Hubei, China, 2013
帕莱索农业旅游咖啡天堂,委内瑞拉,2013年
AGRITOURISM CAFÉ PARAISO, Venezuela, 2013
SALAROLI展示厅,意大利,切塞纳,2014年
SALAROLI SHOWROOM, Cesena, Italy, 2014
佛罗伦萨中央市场,意大利佛罗伦萨,2014年
MERCATO CENTRALE FIRENZE, Florence, Italy, 2014
科诺公共图书馆及礼堂,意大利,贝加莫,科诺,1997—2009年
CURNO PUBLIC LIBRARY AND AUDITORIUM, Curno, Bergamo, Italy, 1997–2009
第勒诺大街重建,意大利,波坦察,2000年至今
VIA TIRRENO REDEVELOPMENT, Potenza, Italy, 2000–now
广场及公共设施,意大利,莱科,梅拉泰,1996—2010年
SQUARE AND PUBLIC FACILITIES, Merate, Lecco, Italy, 1996–2010
内姆布拉图书馆,意大利,贝加莫,内姆布拉,2002—2007年
NEW LIBRARY IN NEMBRO, Nembro, Bergamo, Italy, 2002–2007
"THE CORD" 艺术装置/威尼斯视觉艺术双年展入口,意大利,威尼斯,城堡花园,2003年
THE CORD Giardini Di Castello, Venezia, Italy, 2003
塞雷尼奥残疾人中心,意大利,米兰,塞雷尼奥,2003—2012年
CDD – CENTER FOR DISABILITY, Seregno, Milan, Italy, 2003–2012
安蒂诺里酒庄,意大利,佛罗伦萨,佩萨河谷圣卡夏诺,2004—2012年
ANTINORI WINERY, San Casciano Val di Pesa, Florence, Italy, 2004–2012
常青藤塔,阿尔巴尼亚,地拉那,2005年至今
4 EVERGREEN, Tirana, Albania, 2005 – Now 112
不凡帝范梅勒工厂翻新扩建,意大利,米兰,莱纳特,2005—2011年
PERFETTI VAN MELLE FACTORY, Lainate, Milan, Italy, 2005 – 2011
糖果迪斯科舞厅,中国,北京,2006年
TANGO DISCO, Beijing, China, 2006 132
阿巴图斯公园宿营地,意大利,利佛诺,圣温琴佐,2005—2007年
PARK ALBATROS CAMPING, San Vincenzo, Livorno, Italy, 2005–2007
香格里拉酒庄,中国,山东,蓬莱,2007年至今
SHANGRI-LA WINERY, Penglai, Shangdong, China, 2007–Now
音乐与文化公园,意大利,佛罗伦萨,2007年
PARK OF MUSIC AND CULTURE, Florence, Italy, 2007
2010年中国上海世界博览会城市最佳实践区B3-2展馆,中国,上海,2007年
UBPA B3-2 PAVILION WORLD EXPO 2010, Shanghai, China, 2007
卡罗费利切酒店,意大利,萨萨里,拉马达莱那,2008—2009年
RESIDENZA DEL FORTE CARLO FELICE, La Maddalena, Sassari, Italy, 2008–2009
GEL-绿色能源实验室,中国,上海,2008—2012年
GEL – GREEN ENERGY, Shanghai, China, 2008–2012
VIA MAESTRI CAMPIONESI大街住宅,意大利,米兰,2009-—2012年
DWELLINGS IN VIA MAESTRI CAMPIONES, Milan, Italy, 2009–2012
勒特拉兹疗养院扩建项目,意大利,瓦雷泽,库纳尔多,2010年
EXPANSION OF “LE TERRAZZE” NURSING HOME, Cunardo, Varese, Italy, 2010
醴陵世界陶瓷艺术城,中国,湖南,醴陵,2010—2012年
LILING WORLD CERAMIC ART CITY, Liling, Hunan, China, 2010–2012
昌黎金士酒庄,中国,昌黎,2010—2012年
CHANG LI WINERY, Changli, China, 2010–2012
COLLE LORETO住宅楼,瑞士,卢加诺,2010年至今
COLLE LORETO RESIDENCE, Lugano, Switzerland, 2010–Now
绿博核心区,中国,郑州,2011年
LVBO CORE, Zhengzhou, China, 2011
国际葡萄酒博览园,中国,北京,延庆,2014年
INTERNATIONAL GRAPE EXHIBITION GARDEN , Yanqing , Beijing , China, 2014
襄阳机场竞赛项目,中国,湖北,襄阳,2013年
XIANGYANG AIRPORT COMPETITION, Xiangyang, Hubei, China, 2013
帕莱索农业旅游咖啡天堂,委内瑞拉,2013年
AGRITOURISM CAFÉ PARAISO, Venezuela, 2013
SALAROLI展示厅,意大利,切塞纳,2014年
SALAROLI SHOWROOM, Cesena, Italy, 2014
佛罗伦萨中央市场,意大利佛罗伦萨,2014年
MERCATO CENTRALE FIRENZE, Florence, Italy, 2014















