编辑推荐
本书项目囊括了世界主要城市的优秀作品,包含欧洲、美洲、亚洲和中国。
图书简介
本书收录的作品将通过多样的办公景观形式设计,为读者呈现不同区域多样的办公环境,为其他商业办公景观设计提供有价值的参考。所收录项目囊括了现代化设计和优质景观元素的选择打造的高质量空间,以及功能齐全和良好的定位。以案例为主,辅以图纸及实景图片,图文并茂,编排精美。
图书目录
COMMERCIAL
LANDSCAPE
商业景观
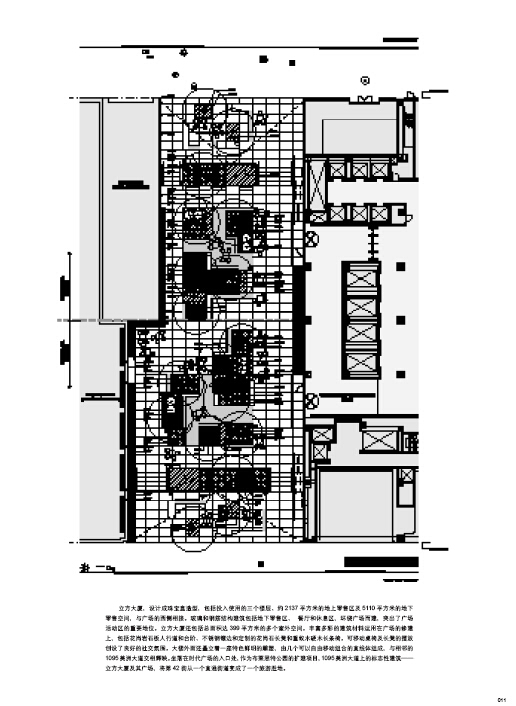
THE CUBES
立方大厦
TRUMP TOWERS
川普大楼
PUERTO VENECIA, ZARAGOZA, SPAIN
西班牙萨拉戈萨Puerto Venecia项目
ATOLL SHOPPING CENTRE
环礁购物中心
CITY CREEK CENTRE
城市溪流中心
PARK VENTURES ECOPLEX
企业生态园
MERCHANTS OCEAN WORLD PLAZA, SHENZHEN
深圳招商海上世界
SUZHOU INDUSTRIAL PARK TIMES SQUARE
苏州工业园区时代广场
HOTEL MODERA
莫德拉酒店
SANTA MONICA PLACE
圣塔莫妮卡购物中心
VANKE CHONGQING XIJIU PLAZA
万科重庆西九广场
ST JAMES PLAZA
圣詹姆斯广场
SKY PARK
空中花园
QINGDAO ROCK CITY
青岛乐客城
TAIPEI WORLD TRADE CENTER SQUARE LANDSCAPE
DESIGN
台北世界贸易中心广场
DOWNTOWN JEBEL ALI
市中心阿里港项目
PASSEIO DOS CLÉRIGOS
里斯本广场
YEONGDEUNGPO TIME SQUARE
永登浦时代广场
GEMDALE BACK BAY COMMERCIAL STREET
金地锦城商业街
ART WONDERLAND PROJECT
金地艺境商业街
CORPORATE
LANDSCAPE
办公景观
CAMPUS REPSOL
雷普索尔园区
THE PARK
企业园
SOFIA AIRPORT CENTRE
索非亚机场中心
SMITH CARDIOVASCULAR RESEARCH BUILDING
史密斯心血管研究大楼
UNIPOL GROUP HEADQUARTERS
尤尼珀尔集团总部大厦
ENERGY BIOSCIENCES BUILDING
能源生物科学大厦
THE PORT OF PORTLAND HEADQUARTERS
波特兰港总部
BURLINGTON ROAD
伯灵顿路大厦
COYOACÁN CORPORATE CAMPUS
科约阿坎企业园
SYMANTEC CHENGDU CAMPUS
Symantec公司成都园区
DIGITAL PARK II AND III
数码园(二、三期)
FRONTIER PROJECT
前沿项目
POLY INTERNATIONAL PLAZA
保利国际广场
MIRAI HOUSE
Astellas公司莱顿总部
FEDERAL CENTER SOUTH BUILDING 1202
联邦中心南楼1202
CORPORATE OFFICE FOR INDIA GLYCOLS, NOIDA
诺伊达印度Glycols公司办公
MATERIALIZING THE LIGHT
物化的光
MAXIM OFFICE PARK
马克西姆办公园
BORD GAIS NETWORKS CENTRE
国家天然气公司网络中心
CCTV
央视大楼
GIANT INTERACTIVE GROUP CAMPUS
巨人网络集团企业园
LANDSCAPE
商业景观
THE CUBES
立方大厦
TRUMP TOWERS
川普大楼
PUERTO VENECIA, ZARAGOZA, SPAIN
西班牙萨拉戈萨Puerto Venecia项目
ATOLL SHOPPING CENTRE
环礁购物中心
CITY CREEK CENTRE
城市溪流中心
PARK VENTURES ECOPLEX
企业生态园
MERCHANTS OCEAN WORLD PLAZA, SHENZHEN
深圳招商海上世界
SUZHOU INDUSTRIAL PARK TIMES SQUARE
苏州工业园区时代广场
HOTEL MODERA
莫德拉酒店
SANTA MONICA PLACE
圣塔莫妮卡购物中心
VANKE CHONGQING XIJIU PLAZA
万科重庆西九广场
ST JAMES PLAZA
圣詹姆斯广场
SKY PARK
空中花园
QINGDAO ROCK CITY
青岛乐客城
TAIPEI WORLD TRADE CENTER SQUARE LANDSCAPE
DESIGN
台北世界贸易中心广场
DOWNTOWN JEBEL ALI
市中心阿里港项目
PASSEIO DOS CLÉRIGOS
里斯本广场
YEONGDEUNGPO TIME SQUARE
永登浦时代广场
GEMDALE BACK BAY COMMERCIAL STREET
金地锦城商业街
ART WONDERLAND PROJECT
金地艺境商业街
CORPORATE
LANDSCAPE
办公景观
CAMPUS REPSOL
雷普索尔园区
THE PARK
企业园
SOFIA AIRPORT CENTRE
索非亚机场中心
SMITH CARDIOVASCULAR RESEARCH BUILDING
史密斯心血管研究大楼
UNIPOL GROUP HEADQUARTERS
尤尼珀尔集团总部大厦
ENERGY BIOSCIENCES BUILDING
能源生物科学大厦
THE PORT OF PORTLAND HEADQUARTERS
波特兰港总部
BURLINGTON ROAD
伯灵顿路大厦
COYOACÁN CORPORATE CAMPUS
科约阿坎企业园
SYMANTEC CHENGDU CAMPUS
Symantec公司成都园区
DIGITAL PARK II AND III
数码园(二、三期)
FRONTIER PROJECT
前沿项目
POLY INTERNATIONAL PLAZA
保利国际广场
MIRAI HOUSE
Astellas公司莱顿总部
FEDERAL CENTER SOUTH BUILDING 1202
联邦中心南楼1202
CORPORATE OFFICE FOR INDIA GLYCOLS, NOIDA
诺伊达印度Glycols公司办公
MATERIALIZING THE LIGHT
物化的光
MAXIM OFFICE PARK
马克西姆办公园
BORD GAIS NETWORKS CENTRE
国家天然气公司网络中心
CCTV
央视大楼
GIANT INTERACTIVE GROUP CAMPUS
巨人网络集团企业园










