编辑推荐
图纸详尽,参考价值较大。本书图文并茂,寓实用与欣赏于一体,将带给建筑设计界一个新的惊喜。
图书简介
本书以公共建筑设计的视觉艺术、界面组合、色彩效应方面为出发点,精选了30多个全球具有代表性的公共建筑,对其建筑特色和设计理念进行详尽的介绍,力求通过设计师、建筑师、城市规划师的视点传达公共建筑最新的设计发展趋向。本书图文并茂,寓实用与欣赏于一体,将带给建筑设计界一个惊喜。
图书目录
Mint Museum
敏特博物馆
Grand Canal Square Theatre and Commercial Development
大运河广场剧院及商业开发区
Arezzo Courthouse
阿雷佐法院大楼
Public School in Jerez
赫雷斯公立学校
The Sovereign Pop Venue
The Sovereign演奏厅
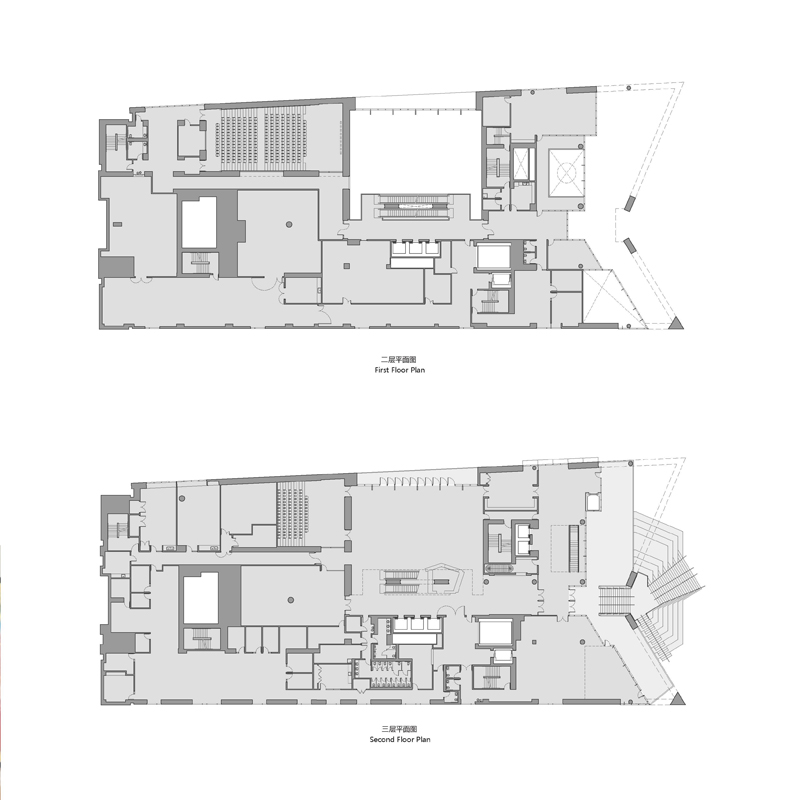
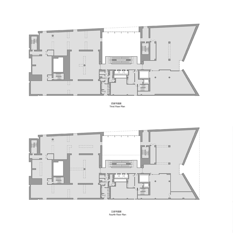
Qingdao Grand Theater
青岛大剧院
Admirant Entrance Building
Admirant入口建筑
Silver Spring Civic Building
银泉市市民大厦
Pavilion 21 Mini Opera Space
Pavilion 21迷你歌剧院
Chongqing Grand Theater
重庆大剧院
AIC Automotive Intelligence Centre
AIC汽车智能中心
41 Cooper Square
库珀广场41号
Vodafone Headquarters
沃达丰总部
Benetton Group Headquarters
贝纳通集团总部
MUCAB
MUCAB综合建筑
Prism Contemporary Art Gallery
棱镜当代艺术画廊
Central Los Angeles Area High School #9 for the Visual and Performing Arts
洛杉矶中心区第九视觉与表演艺术高中
敏特博物馆
Grand Canal Square Theatre and Commercial Development
大运河广场剧院及商业开发区
Arezzo Courthouse
阿雷佐法院大楼
Public School in Jerez
赫雷斯公立学校
The Sovereign Pop Venue
The Sovereign演奏厅
Qingdao Grand Theater
青岛大剧院
Admirant Entrance Building
Admirant入口建筑
Silver Spring Civic Building
银泉市市民大厦
Pavilion 21 Mini Opera Space
Pavilion 21迷你歌剧院
Chongqing Grand Theater
重庆大剧院
AIC Automotive Intelligence Centre
AIC汽车智能中心
41 Cooper Square
库珀广场41号
Vodafone Headquarters
沃达丰总部
Benetton Group Headquarters
贝纳通集团总部
MUCAB
MUCAB综合建筑
Prism Contemporary Art Gallery
棱镜当代艺术画廊
Central Los Angeles Area High School #9 for the Visual and Performing Arts
洛杉矶中心区第九视觉与表演艺术高中











